Brand new luxury rancher in an up-and-coming neighbourhood in the heart of Parksville. Quality prevails throughout this efficiently designed one-level home, offering all the extras you expect from fine construction! Enjoy luxuriant radiant floor heating, a separate A/C unit for year-round comfort, and a natural gas fireplace for ambience and warmth. The custom kitchen boasts quartz countertops, abundant built-in cabinetry, and a beautiful appliance package. The master ensuite is exquisite offering a wonderful oasis for you at the end of the day. Tastefully designed and appointed, this dream home is landscaped, fenced, and move-in ready. Don’t miss this opportunity! Price is plus GST. This home does qualify for the New 1st Time Home Buyers GST Exemption and for qualified Buyers there is a PTT exemption as well.
Address
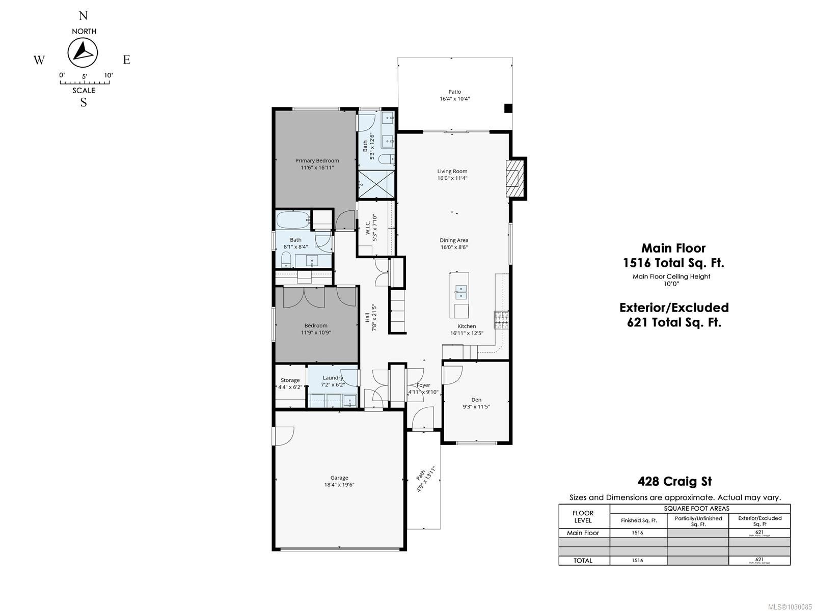
428 Craig St
List Price
$924,900
Property Type
Residential
Type of Dwelling
Single Family Residence
Style of Home
Contemporary
Transaction Type
Sale
Area
Parksville/Qualicum
Sub-Area
PQ Parksville
Bedrooms
2
Bathrooms
2
Floor Area
1,516 Sq. Ft.
Lot Size
6110 Sq. Ft.
Lot Size (Acres)
0.14 Ac.
Year Built
2025
MLS® Number
1030085
Listing Brokerage
Royal LePage Nanaimo Realty (NanIsHwyN)
Basement Area
None
Postal Code
V9P 1L2
Tax Year
2025
Features
Electric Garage Door Opener, Hardwood, Heat Pump, Natural Gas, Radiant Floor, Tile, Vinyl Frames
Amenities
Accessible Entrance, Balcony/Deck, Central Location, Fenced, Ground Level Main Floor, Landscaped, Level, No Step Entrance, Primary Bedroom on Main, Quiet Area, Shopping Nearby, Wheelchair Friendly





























